In arhitectura contemporana, acoperisul plan nu mai este doar o solutie estetica, ci un spatiu activ care trebuie sa functioneze impecabil. Pentru asta, fiecare strat conteaza – inclusiv alegerea unui receptor terasa eficient si durabil.
Contextul tehnic si necesitatea unei solutii fiabile
Pe masura ce acoperisurile plane devin tot mai populare in constructiile comerciale si rezidentiale, gestionarea apei pluviale devine un subiect critic. In acest context, integrarea unui receptor terasa performant nu mai este o alegere optionala, ci o cerinta tehnica fundamentala.
Fiecare proiect trebuie sa raspunda provocarilor legate de volum crescut de precipitatii, variatii de temperatura, incarcaturi structurale si standarde stricte privind hidroizolatia. Un sistem de drenaj ineficient poate genera infiltratii, compromiterea izolatiei si deteriorarea rapida a straturilor suport.
Ce este si cum functioneaza un receptor terasa?
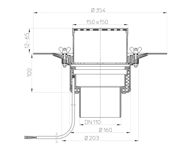
Din punct de vedere tehnic, un receptor terasa este un element de scurgere proiectat pentru a colecta si evacua apa de pe suprafetele plane, asigurand protectia intregului sistem de acoperis. Acesta este montat in stratul de hidroizolatie si conectat la reteaua de canalizare pluviala, avand rolul de a prelua rapid si eficient apa acumulata in urma precipitatiilor.
Modelele moderne sunt echipate cu flansa din membrana bituminoasa, cos de protectie si iesire orizontala DN125 – o configuratie ideala pentru montaj rapid si sigur in acoperisurile hidroizolate.
Materiale rezistente si tehnologie aplicata
Calitatea unui receptor terasa depinde in mod direct de materialele folosite si de adaptabilitatea produsului la specificul lucrarii. Cele mai fiabile modele sunt fabricate din poliamida tehnica PA6, un material recunoscut pentru rezistenta chimica, stabilitatea dimensionala si comportamentul excelent la temperaturi extreme.
Aceasta compozitie il face ideal pentru utilizarea in medii expuse la radiatii UV, cicluri repetate de inghet-dezghet si sarcini mecanice ridicate. In plus, cosul integrat asigura o protectie constanta impotriva colmatarii si permite intretinerea usoara a sistemului.

Receptor terasa cu avantaje practice pentru proiectanti si executanti
Integrarea unui receptor terasa de generatie noua aduce beneficii semnificative pentru toate partile implicate in proiect:
Montaj rapid, datorita elementelor preasamblate si racordurilor standardizate
Compatibilitate cu cele mai utilizate membrane bituminoase
Reducerea riscurilor de infiltratii printr-o etansare eficienta
Fiabilitate pe termen lung, cu intretinere minima
Adaptabilitate pentru terase circulabile si necirculabile
Aceste caracteristici transforma un receptor terasa dintr-un simplu accesoriu intr-o componenta esentiala a sistemului de acoperis.
Aplicabilitate extinsa in proiecte diverse
Un receptor terasa de calitate este utilizat in toate tipurile de constructii cu acoperis plan: cladiri rezidentiale, sedii de birouri, centre comerciale, spitale, scoli sau hale industriale. De asemenea, este indispensabil in proiectele de renovare care implica refacerea hidroizolatiei si actualizarea sistemului de drenaj.
In aceste cazuri, inaltimea redusa a componentelor, eficienta evacuarii si compatibilitatea cu structurile existente sunt criterii esentiale pentru alegerea produsului potrivit.
Rolul consultantului tehnic in alegerea solutiei optime
Desi aparent simpla, alegerea unui receptor terasa necesita analiza atenta a specificatiilor tehnice, a compatibilitatii cu sistemul existent si a regimului de utilizare al cladirii. De aceea, implicarea unui consultant tehnic sau a unui furnizor specializat este vitala.
Acesta poate recomanda solutia adecvata din punct de vedere al debitului, materialului, tipului de racord si metodei de etansare. Astfel se evita improvizatiile sau montajele neconforme, care pot afecta intreaga lucrare.

Disponibilitate, asistenta si livrare
Produsele moderne sunt disponibile rapid prin distribuitori specializati precum Mival Instal, care ofera nu doar livrare prompta din stoc, ci si consultanta in alegerea solutiei potrivite. Prin pagina de contact, se pot solicita informatii tehnice, fise de produs si suport personalizat pentru proiecte speciale.
Pentru lucrari la scara larga sau termene stranse, acest nivel de asistenta poate face diferenta intre un proiect intarziat si unul livrat la timp.
Comanda de la specialistii locali mivalinstal.ro
Un receptor terasa eficient nu inseamna doar un element de evacuare. Inseamna siguranta, durabilitate si performanta integrata. Este piesa care protejeaza investitia, optimizeaza functionarea cladirii si contribuie la respectarea standardelor de calitate si siguranta.
Intr-o piata competitiva, in care atentia la detalii diferentiaza proiectele reusite de cele problematice, alegerea unor componente certificate, durabile si testate devine o strategie inteligenta.






